Our Business Lines

Line of Business Overview

Overview of our proposed services in Oil & Gas

Line of Business ICSS Engineering

PSS engineering documents, ICSS interface specification, etc.

Line of Business Automation

Control & ESD-Fire&Gas systems / Telemetry SCADA

Line of Business Telecommunication Integration

Our know how & our added value to clients for telecommunication integration

Line of Business Electricity

Our know how & our added value to clients for electrical systems integration

Line of Business Food & Beverage Industry

E&I Turn key solution of SCADA, Automation, MES, Electrical Distribution – Fied Instrumentation for Industrial Facilities

Who We Are

Human Ressources

100 engineering staff: 100% Indonesian engineers project teams

Organisation Chart

See our profile & legal structure

Health & Safety Environment Policy

See our health & safety environment policy

Company Licences

See our Company Licenses

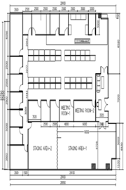
Office & Staging Layout

See our Office & Staging Layout